


modern teknolojisi, güvenlik özellikleri ve estetik tasarımıyla yaşam alanlarınıza dört mevsim konfor katar. Otel, kafe, restoran, konut, teras, kış/yaz bahçesi ve alışveriş merkezleri gibi alanlarda kullanılarak mekânları daha ferah, aydınlık ve vazgeçilmez hale getirir. Giyotin sistemleri sayesinde doğanın olumsuz koşullarını dışarıda bırakırken, gün ışığını ve panoramik manzarayı iç mekâna taşırsınız.
Dört mevsim kullanım imkânı
8 mm temperli veya ısıcam panellerden oluşan giyotin sistemleri, yukarı-aşağı hareketiyle doğal ışık ve panoramik görüş sunar. RTS teknolojisine sahip motor sistemi, uzaktan kumanda ile yönetilebilir. İnce ve estetik cam profilleri, görüş alanını engellemez; sınırsız renk, ahşap kaplama ve desen seçenekleri ile dış mekânla uyumlu bir görünüm sağlar.
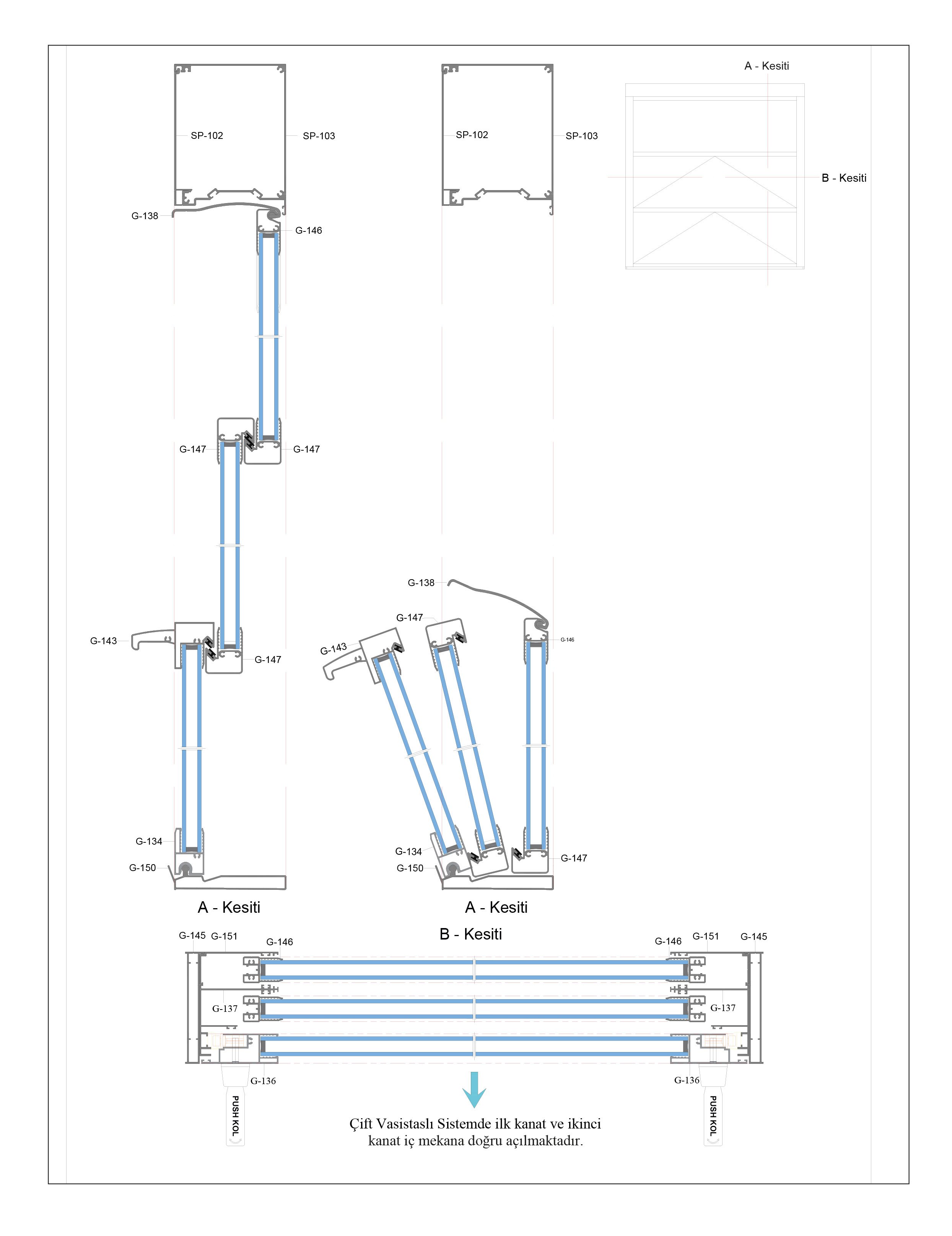
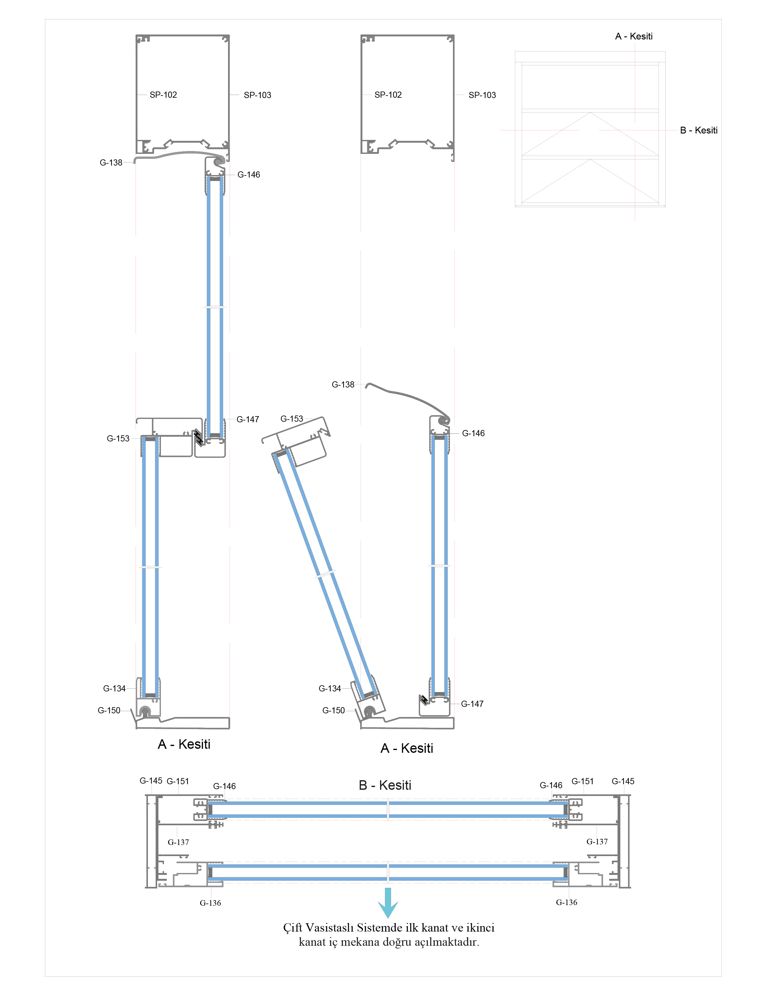
Opsiyonel vasistaslı cam seçeneği, yüksek katlarda kolay temizlik ve havalandırma imkânı sunar. Giyotin sistemler %60 oranında ses yalıtımı sağlar, ısıcamlı modellerde kullanılan özel camlar sayesinde ısı yalıtımı üst seviyeye çıkarılır. Akıllı ev sistemleriyle uyumlu çalışır ve bağımsız test kuruluşlarınca yapılan ses, rüzgâr ve yalıtım testleriyle Avrupa standartlarında sertifikalandırılmıştır.
Kaiser Grand Giyotin Cam Sistemleri, kullanıcı güvenliği ön planda tutularak tasarlanmıştır. Cam paneller arasında parmak sıkışmasını önleyen mekanizma, motor alt limit ayarları ve çelik zincirli (opsiyonel) güvenlik sistemi ile tam koruma sağlar. Teras uygulamalarında sistem, kapalıyken pencere; açıkken emniyetli cam korkuluk görevi üstlenir. Özel güvenlik camları ve profil sistemi sayesinde kilitsiz güvenlik sunar.
Kaiser Grand’ın ileri mühendisliğiyle geliştirilen Giyotin Cam Sistemleri, estetik, güvenlik ve fonksiyonelliği bir araya getirerek yaşam alanlarınıza prestijli bir dokunuş kazandırır.







2000 yılından bu yana pergola ve cam sistemlerinde sektörel deneyimiyle güvenilir çözümler sunar.
Bioklimatik, giyotin, zip perde ve daha birçok modern sistemde ileri teknolojiyle estetik ve fonksiyonelliği birleştirir.
Tüm ürünlerinde uluslararası standartlara uygun, uzun ömürlü ve yüksek kaliteli malzemeler kullanır.
Türkiye’nin yanı sıra dünya pazarında da müşterilerine profesyonel hizmet ve güçlü satış sonrası destek sağlar.
Bioklimatik, Pergola, Giyotin, Rüzgar Kırıcı, Zip Perde, Wintend, Cam Tavan, Sürme Cam, Katlanır Kapı, Panoramik Cam siparişi vermek için telefon veya e-posta ile iletişime geçiniz.
Bioklimatik, Pergola, Giyotin, Rüzgar Kırıcı, Zip Perde, Wintend, Cam Tavan, Sürme Cam, Katlanır Kapı, Panoramik Cam siparişi vermek için telefon veya e-posta ile iletişime geçiniz.
Bioklimatik, Pergola, Giyotin, Rüzgar Kırıcı, Zip Perde, Wintend, Cam Tavan, Sürme Cam, Katlanır Kapı, Panoramik Cam siparişi vermek için telefon veya e-posta ile iletişime geçiniz.

|
Aşağı Yahyalar, 978. Cad No:23, 06000 Yenimahalle/Ankara |
|
E-Posta
|
|
Telefon
|
|
Telefon
|
|